Fra to-værelseslejlighed til tre

København, Danmark

69 kvm

2022

Bara Strelcova

Område:

Størrelse:

År:

Team:


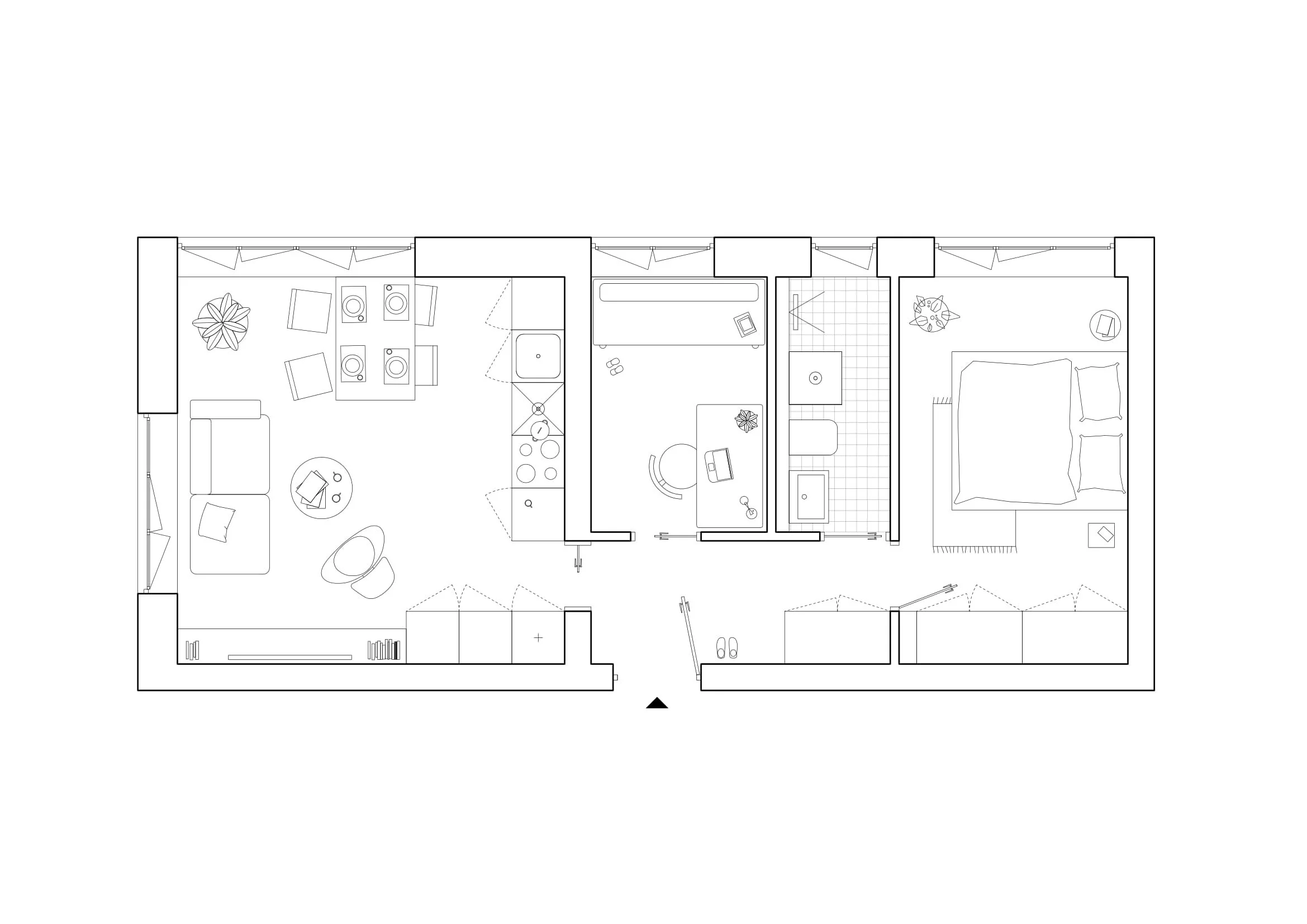
Ved at flytte køkkenet og skabe et åbent koncept i stuen tilpasses layoutet fra to værelser til tre værelser, hvilket giver plads til et soveværelse og et mindre andet værelse, der fungerer perfekt som hjemmekontor/gæsteværelse. Med et speciallavet køkken med skabslåger i egefinér opnår stuen en varm og tidløs æstetik.

Forrige
Forrige

Renovering af en lejlighed fra 1920'erne

Næste
Næste

Lejlighed til udlejning